弗兰克·盖里
Frank Gehry
2025 年 12 月 5 日,建筑师弗兰克·欧文·盖里在加州圣莫尼卡的家中去世,享年 96 岁。死因是短期呼吸道疾病。
作为当代最具影响力的建筑师之一,盖里的一生几乎与现代建筑的叙事紧密交织。

part 01
弗兰克·盖里
改变建筑的叛逆者
盖里原名埃弗雷姆·欧文·戈德堡,1929 年出生于加拿大多伦多。因为家庭原因,他在 17 岁时随家人迁往洛杉矶。年轻时,他靠开送货卡车维持生活,同时在洛杉矶城市学院学习建筑。虽然起步艰难,但几位富有同情心的老师,以及与现代主义建筑师拉斐尔·索里亚诺的接触,让他坚定走上建筑之路。

△儿时的弗兰克.盖里与外公、外婆在一起
1954 年,他从南加州大学获得建筑学位,并在同年把姓氏从 “Goldberg” 改为 “Gehry”。之后他在洛杉矶多家事务所工作,也曾在哈佛大学攻读城市规划。尽管没有完成学业,他仍不断在实践中寻找方向。他带着家人在巴黎生活一年,受安德烈·雷蒙德及勒·柯布西耶作品启发,视野进一步扩展。1962 年,回到洛杉矶,创立了后来闻名世界的 Gehry Partners。

△求学时的盖里
盖里真正的转折点出现在 1970 年代末。他改造了自己位于圣莫尼卡的旧宅,那是一栋普通、甚至有些笨拙的小房子。他用金属板、木材和工业材料大胆包裹原有结构,创造出一种全新、破碎而富有张力的建筑语言。邻居不理解,但建筑界振奋。盖里从此走上属于自己的道路:不迎合,不妥协。

△美国圣莫妮卡盖里住宅(Gehry Residence, 1978)
1989 年,他获得普利兹克建筑奖,成为全球瞩目的建筑大师。他的代表作包括毕尔巴鄂古根海姆博物馆和洛杉矶华特·迪士尼音乐厅。前者以流动的金属外形震惊世界,被称为改变城市命运的建筑;后者则以复杂的曲面构成、惊人的声学表现,被视为城市文化的新地标。盖里的出现,让建筑不再只是“功能的容器”,而变成一种强烈的艺术表达。

△西班牙毕尔巴鄂古根海姆博物馆,1997年

△美国沃尔特·迪士尼音乐厅,2003年

△德国维特拉设计博物馆,1989年

△美国韦斯曼艺术博物馆,1993年

△跳舞的房子,捷克共和国,1996年

△英国展望广场,2022年

△美国8 Spruce,2011年

△法国路易威登基金会,2014

△巴拿马生物博物馆,2014年

△澳大利亚科技大学,2015年

△法国阿尔勒 Luna,2021 年
左滑查看更多照片→
盖里也是一个直言不讳的人。2014 年,他在西班牙的一场记者会上说:“当今世界 98% 的建筑都是垃圾。”这句话震动了全球建筑界,也体现了他一生坚持的立场:建筑必须有想象力、有尊严、有对人的关怀。

在公众文化中,他也留下过轻松的一面,曾在《辛普森一家》中客串,还成为纪录片《弗兰克·盖里的素描》的主角。

△《辛普森一家》里的盖里
part 02
代表性作品
弗兰克·盖里的一生,是不断突破建筑常规与材料界限的历程。他善于将金属、玻璃、砖块等材料雕塑化,创造出扭曲、流动、充满动感的建筑形态,使建筑不再只是功能的容器,而成为艺术与城市文化的表达。
无论是私人住宅、博物馆、音乐厅,还是办公楼和教育建筑,他的作品都强调空间的灵活性、自然光的引入与环境的互动,同时赋予每一座建筑独特的视觉冲击力。盖里证明了建筑可以叛逆、自由且令人惊喜,他的作品已成为全球建筑设计的标杆,也深刻影响了现代建筑的发展方向。
Gehry Residence
破碎中的新秩序
时间丨1978 年
地区丨美国加州圣莫尼卡
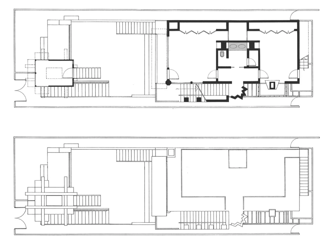
这是盖里为自己和家人改造的住宅。原本是一栋 1920 年代 “Dutch Colonial” 风格的住宅,盖里用金属、胶合板、铁丝网 (chain-link) 等非常规材料对其进行“包裹、扭曲、扩展”。
这栋房子 1978 年完工,被视为早期解构主义 (Deconstructivist) 建筑在住宅领域的代表。



设计图▽

△一层平面图

△二楼平面图

△立面图

△轴测图
左滑查看更多照片→
Norton House
海边的拼贴盒子
时间丨1984 年
地区丨美国
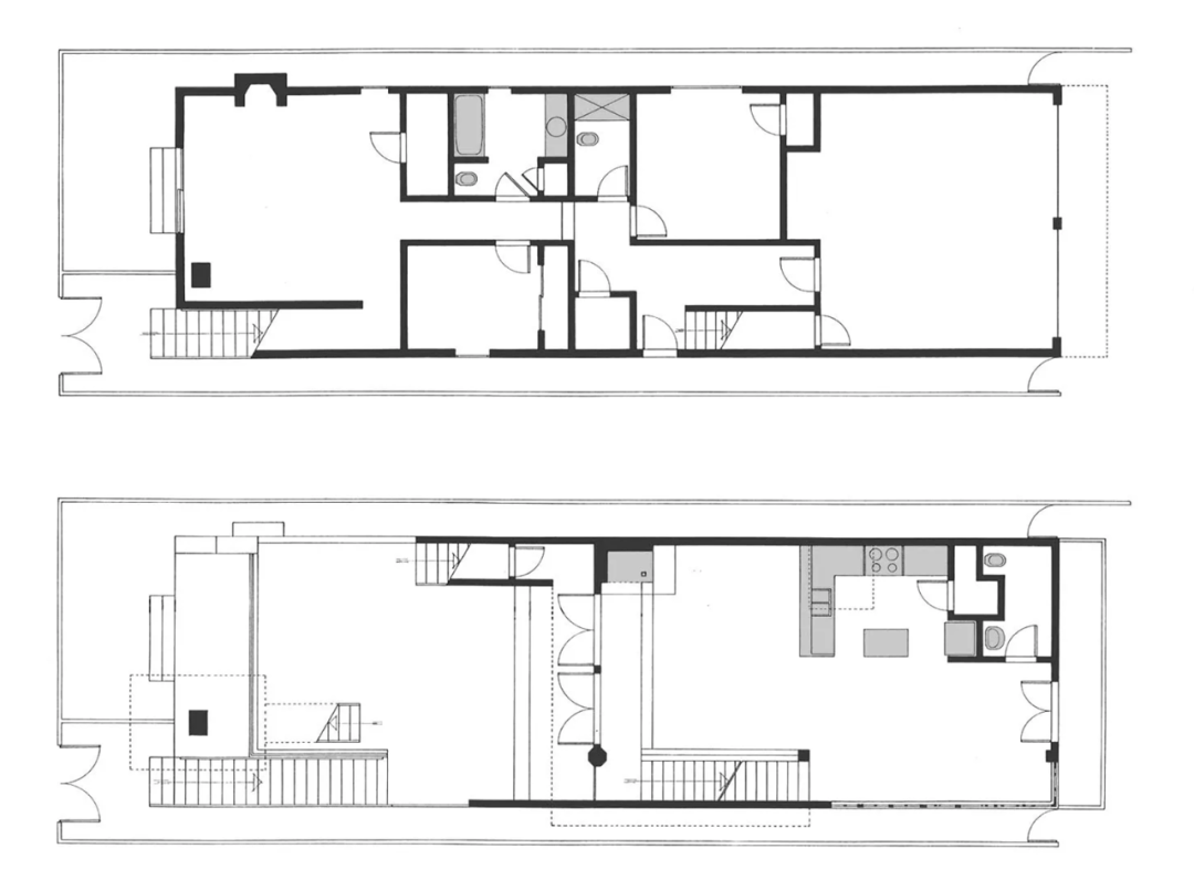
这是盖里为艺术家/作家 (William & Lynn Norton) 设计的海滨住宅。地处窄小的海滨地块,他采用拼贴式 (collage) 的设计,把不规则的体量、不对称的空间和多种材料,混凝土块 (concrete block)、stucco、瓷砖 (tile)、木头 (timber) 等混合起来。
住宅的一大特色是“高架小工作室 (studio)” 像救生员塔 (lifeguard-stand) 那样矗立在前面,用于俯瞰大海和沙滩,呼应房主曾是救生员的身份。


设计图▽

△平面图

△平面图

△立面图

△立面图
左滑查看更多照片→
Vitra Design Museum
几何体的舞动
时间丨1989 年
地区丨德国
这是盖里第一座在欧洲大陆建成的重要公共建筑,也是他“解构主义/雕塑化”风格进入博物馆空间的标志之作。



Weisman Art Museum
金属浪潮初现
时间丨1993 年
地区丨美国明尼阿波利
威斯曼艺术博物馆(Weisman Art Museum)于 1993 年在明尼苏达大学校园内落成,是弗兰克·盖里在金属曲面语言成熟前的重要节点作品。建筑以不锈钢板构成的折叠体量为最大特色,几何块体像被光线雕刻般交错堆叠。


Dancing House
建筑在跳舞
时间丨1996 年
地区丨德国捷克布拉格
这座建筑因其动感、不规则的轮廓被称为“舞动的房子 (Dancing House)”,像两位舞者在河畔拥抱。
它是盖里将雕塑式、富有表现力的造型语言带入城市日常建筑的重要尝试。



设计草图▽

Guggenheim Museum Bilbao
金属的城市魔法
时间丨1997 年
地区丨西班牙毕尔巴鄂
这座博物馆以波浪起伏的不规则钛金属外壳闻名,外观如同“流动的雕塑”,其复杂曲面通过数字建模与精密结构实现。
自 1997 年开放以来,它不仅成为世界建筑史上的里程碑,还催生了所谓的“毕尔巴鄂效应 (Bilbao Effect)” 以建筑带动城市更新与文化、经济的复兴。



设计图▽



Gehry Tower
扭转金属塔
时间丨2001 年
地区丨德国汉诺威
这是一栋 9 层的建筑,其外立面沿着钢筋混凝土核心呈“扭曲 (twist)” 状,是盖里将其造型语言应用到办公建筑上的范例。

Walt Disney Concert Hall
曲面的音乐殿堂
时间丨2003 年
地区丨美国加州洛杉矶
此建筑的不锈钢“帆船”外表和流动线条,使其成为洛杉矶城市地标,也成为盖里“雕塑 + 功能建筑”融合能力的代表。
内部 auditorium 以其独特造型与优秀声学效果闻名,是公共文化建筑与雕塑建筑融合的典范。




IAC Building
雕塑化办公建筑
时间丨2007 年
地区丨美国纽约
这是盖里在纽约的重要作品之一,建筑以玻璃和流动造型代替传统写字楼直线外观,展示他将雕塑语言延伸到都市办公建筑的尝试。


建筑模型▽

Marqués de Riscal
葡萄酒丝带
时间丨2010 年
地区丨西班牙
Marqués de Riscal 酒庄是弗兰克·盖里在葡萄酒文化建筑上的代表作。建筑以不锈钢和钛金属曲面打造出如丝带般缠绕的屋顶,色彩鲜明、线条流动,象征葡萄酒液体的律动和葡萄园的延展。
整体建筑由酒店、酒庄与会客空间组成,融合景观与建筑,使游客在品酒体验中感受到空间的艺术性。盖里以雕塑化的手法将传统酒庄重新诠释,既彰显了现代建筑语言,也呼应了当地文化和历史。


设计草图▽

Biomuseo
热带生命的色块
时间丨2010 年
地区丨巴拿马
巴拿马生物博物馆(Biomuseo)位于巴拿马城,建筑采用多彩的屋面与动态曲线,形象地呈现中美洲热带生态的多样性与活力。博物馆整体由八个互相错落的展厅组成,每个展厅通过鲜艳的色彩和不规则体量传达特定的生态主题,同时大量引入自然光,营造明亮、开放的展览空间。
盖里将雕塑化的建筑语言与教育功能结合,使博物馆本身成为城市景观的标志,也成为传递生态保护理念的视觉象征。


设计草图▽

8 Spruce Street
高空里的金属褶皱
时间丨2011 年
地区丨美国纽约
云杉街 8 号住宅(8 Spruce Street)是一座混合用途 (mixed-use) 高层住宅楼,楼高 76 层,建成于 2010 年 (2011 年开放入住)。
它是盖里将他典型的解构主义、雕塑化语言,应用到城市高层住宅中,褶皱、波动的金属立面,使建筑看起来如同“流动的雕塑”。


设计图▽

△楼层平面

△立面设计

△平面图
左滑查看更多照片→
Prospect Place
像风一样的住宅
时间丨2011 年
地区丨英国
这是盖里在英国设计的首个住宅项目,位于伦敦巴特西电站 (Battersea Power Station) 附近。包括两栋建筑,一共约 308 套住宅,涵盖单间、一居、二居、三居、四居以及顶层公寓。
建筑以波浪起伏的雕塑化外立面著称,灵感源自扬起的船帆,既大胆又能最大化住户对河畔及历史厂房的视野。



设计图▽

△平面图

△平面图
左滑查看更多照片→
Opus Hong Kong
螺旋的玻璃居所
时间丨2012 年
地区丨中国香港
这是盖里与合作者为亚洲 (香港) 设计的住宅项目,也是他在亚洲最具代表性的住宅之一。建筑为 12 层住宅楼,包含 12 套精品住宅单元 (包括复式豪宅),并配有地下停车、泳池、健身房等设施。
建筑最大的特点是螺旋式扭转的外形以及玻璃包裹的结构柱,使楼体呈现轻盈、流动的雕塑感,同时让室内几乎没有承重墙,形成通透的开放式布局。


平面图▽

△OPUS HONG KONG住宅-25

△OPUS HONG KONG住宅-26

△OPUS HONG KONG住宅-27

△OPUS HONG KONG住宅-28

△OPUS HONG KONG住宅-29

△OPUS HONG KONG住宅-29
左滑查看更多照片→
Fondation Louis Vuitton
漂浮在树林的风帆
时间丨2014 年
地区丨法国巴黎
这座建筑以“帆船”造型著称,由多个弯曲玻璃“帆”组成,漂浮于巴黎郊外的林荫公园之中,是盖里对“轻盈 + 光影 + 建筑艺术性”的极致表达。
内部设展览空间、公共设施等,将现代建筑与文化、艺术功能融合。



Lou Ruvo Center for Brain Health
不规则的银色记忆
时间丨2014 年
地区丨美国
这是弗兰克·盖里设计的神经健康研究与康复中心,建筑以不规则曲面和错落的钢板立面为最大特色,仿佛大脑结构在空间中扭曲折叠,象征神经网络的复杂性。
整体雕塑化的造型使建筑不仅服务于功能需求,也成为城市标志性建筑,体现了盖里将艺术与实用性融合的设计理念。



Chau Chak Wing Building
揉皱的砖面立体
时间丨2015 年
地区丨澳大利亚
这是弗兰克·盖里为悉尼科技大学设计的商学院建筑。建筑外立面由沙黄色砖块构成,整体形态呈现揉皱、波浪状的曲面,像是一只“揉皱的纸袋”,体现了盖里标志性的雕塑化语言。
内部空间灵活多变,兼顾教学、研究与公共交流功能,大量自然光透入,使室内环境明亮开放。该建筑将现代建筑艺术与校园环境融合,既呼应当地材质与气候,又成为悉尼新的地标性文化建筑。



LUMA Arles Tower
碎光中的银色塔身
时间丨2021 年
地区丨法国阿尔勒
Luma Tower / LUMA Arles 是弗兰克·盖里为法国 LUMA 基金会设计的文化塔楼,也是阿尔勒艺术园区的核心建筑之一。建筑由不规则的金属板块覆盖,立面呈现碎片化、反射光线的效果,仿佛光与影在塔身上流动,象征创新与创意的活力。
塔楼内部空间开放灵活,兼顾展览、研究和公共活动功能,通过多层次的透明与通透设计,引导参观者感受建筑与环境的互动。整体造型雕塑化,既呼应了周边的历史文脉,也成为城市的新地标。




弗兰克·盖里的一生,是不断抗争陈规的一生。他用金属板、曲面和难以复制的建筑形式,重塑了人们对建筑的想象。他证明了建筑不必顺从,可以叛逆;不必追随,可以创造。

他的离世,是一个时代落幕。但他留下的作品,那些闪耀、扭曲、自由而不可预料的形体,仍将继续讲述他对建筑的信念:建筑应该令人惊喜,也应该让世界因此变得更有趣。
致敬大师!

//
将我们设为「星标★」才能第一时间收到推送
上一篇:贵州刚玉耐磨陶瓷管道弯头