丽水摄影节是中国摄影家协会和丽水市人民政府共同主办的国际性摄影节庆活动,自2004年开始,已持续举办十二届,曾创下国内摄影节多个历史之最,已成为世界知名、中国最具影响力的摄影节。
2025年 丽水摄影节将于11月7日——11日举行。
中国摄影网影像艺术展专区,以机构形式参与本届大会,分设 “鸟瞰视界”、“街拍视界”、“工业文化”、“中国摄影网‘十佳摄影师’专题作品展”四个主题版块。
策展机构
中国摄影网
艺术总监
陈小军
展览地址
原油泵厂园区
8号、17号、18号展馆

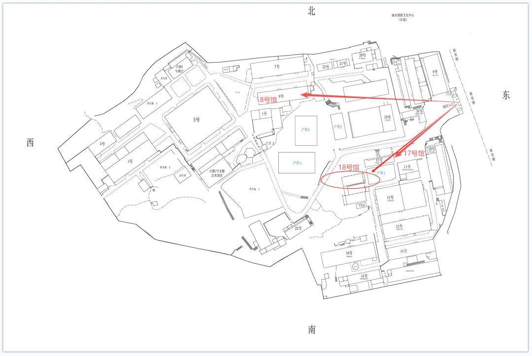
8号、17号、18号展馆位置示意图
丽水市油泵厂

8号展馆

17号展馆


18号展馆














2025年丽水摄影节
中国摄影网影像艺术展
展馆分布名单
8号展馆














8号展馆视频区

17号展馆









18号展馆










立方体装置

第六届国际摄影研讨会暨2025丽水摄影节
展场分布图

1 丽水摄影文化中心丨学术展区
展览日期:
一楼、二楼:11月7日-12月15日
三楼(托马斯·鲁夫个展):2025年11月8日-2026年2月28日
开放时间:
11月7日-11日摄影节期间每天开放时间为9:00-20:30
11月12日起每天开放时间为9:00-17:00
地址:丽水市莲都区括苍路原油泵厂园区以北、丽水中心医院以南
丽水摄影文化中心
浙江省丽水市莲都区丽水市中心医院南侧

02 油泵厂园区丨平行展区
展览日期:11月7日-11月11日
开放时间:9:00-17:30
地址:丽水市莲都区括苍路493号(继光街西端)

03 丽水市美术馆丨国际机构邀请展
展览日期:11月7日-11月30日
开放时间:
11月7日-11日摄影节期间每天开放时间为9:00-20:30
11月12日起每天开放时间为上午9:00-12:00,下午14:00-17:00(逢周一闭馆)
地址:丽水市莲都区人民路561号(处州公园东侧)

04 丽水摄影博物馆
展览日期:2025年11月7日-2026年2月28日
开放时间:
11月7日-11日摄影节期间每天开放时间为9:00-20:30
11月12日起每天开放时间为上午9:00-12:00,下午14:00-17:00
(逢周一闭馆,节假日闭馆日以场馆通知为准)
地址:丽水市莲都区括苍路583号

05 古堰画乡艺术中心
展览日期:11月7日-11月25日
开放时间:9:00-17:00(11月12日起逢周一闭馆)
地址:丽水市大港头镇古堰画乡景区

06 缙云仙都岩宕
展览日期:11月7日-11月11日
开放时间:9:00-17:00
地址:丽水市缙云县仙都景区

07 哈·美术馆
展览日期:11月7日-11月11日
开放时间:9:00-20:30
地址:丽水市莲都区瓯江文苑15幢
